© ООО «ИнКАД», 2026
Центр обратного инжиниринга и 3D сканирования ИнКАД
task@in-cad.ru +7 (812) 665-87-82

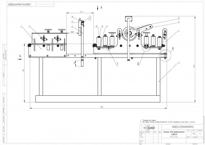
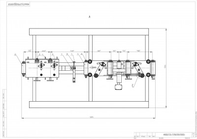
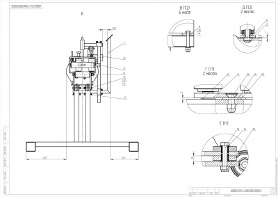
Станок выпрямительный

Задача:
Выполнить обратное проектирование (реверс-инжиниринг) «Станка выпрямительного»
Исходные данные:
В качестве исходных данных был предоставлен старый станок и составлено техническое задание с требуемыми доработками
Выходные данные:
Станок "в металле" и комплект конструкторской документации на него
Срок выполнения:
15 дней - разработка конструкторской документации, 30 дней - изготовление станка.

Работа над данным проектом была нашим вторым взаимодействием с заказчиком. На этот раз заказчик пришел с просьбой выпустить чертежи на выпрямительный станок и изготовить его.

Станок предназначен для выпрямления кабельной продукции, дальнейшей её очистки и нанесения дополнительных маркерных обозначений. Установку очистки и нанесения маркировки мы делали для заказчика в первом совместном проекте.

Что было сделано для решения задачи. Мы выехали на объект к заказчику (Московская область), ознакомились с имеющимся оборудованием, обговорили с заказчиком изменения, которые необходимо внести для более удобной регулировки валков.

Далее мы провели замеры, отстроили трехмерную модель, выпустили конструкторскую документацию и согласовали её с заказчиком. После этого был запущен этап изготовления. Изделие изготовили, собрали и протестировали собственными силами. Следующий этап — это приемка работ заказчиком. Заказчик испытал станок уже в паре с нашей первой разработкой для него (станком очистки), и подтвердил, что выпрямительный станок полностью соответствует его ожиданиям и удовлетворяет всем поставленным требованиям.

Дополнительная информация об услуге реверс-инжиниринга на нашем сайте.

Над проектом работали:

Обсудить проект?

Заполните форму, чтобы наш менеджер связался с Вами и подробно проконсультировал
Спасибо, мы свяжемся с Вами в ближайшее время
Кликните или перенесите файлы (до 2МБ, до 6 файлов)
Заказать звонок
Спасибо, мы свяжемся с Вами в ближайшее время
Оставить заявку на 3D-моделирование
Спасибо, мы свяжемся с Вами в ближайшее время
Оставить заявку
Спасибо, мы свяжемся с Вами в ближайшее время
HostCMS